
东北电网变风量VAV空调控制系统工程案例解析 |
| 发布时间:2010-05-06被阅次数:18358 来源: |
|
东北电网变风量VAV空调控制系统工程案例解析
【摘要】:本文简要分析了东北电网变风量VAV系统设计,实施,运营等过程中常见的难点问题,同时应用了一种复合控制的方法。通过实践证明,该系统具有调试及运行管理方便,系统运行稳定,工程造价低的优点。
【关键词】:高大空间的温度控制,回风平衡,噪声控制 In many VAV system, due to poorly designed or lack of control means, often occurs too cold or overheating, lack of fresh air volume makes indoor air polluted, and other issues. Variable Air Volume (VAV) can reduce equipment and systematic energy consumption, by implementation north east STATE GRID VAV system project, provide our control algorithm and some optimized construction scheme.
东北电网电力调度交易中心大楼建筑设备监控系统工程工作范围包括:冷热源系统(冰蓄冷、电蓄热)、定/变风量空调系统、VAV末端控制系统(包含VAV-BOX箱体整定)、送排风系统、给排水系统、热水供应系统、变配电系统、照明系统及管线施工等,整座大厦主楼及辅楼控制点数为7300点,属于国内较成熟的VAV及冰蓄冷应用案例。 延华公司与2007年7月1开始实施东北电网的变风量VAV系统工程,整个系统安装,整定,调试,试运行工作已完成并交付用户。通过该项目的实施与运营,系统的重点,难点集中在VAV空调控制方面。延华项目团队对整个VAV系统的工程实施及工艺流程进行了总结与提炼。
一、 § 满足不同区域的个性化温度需求 § 合理控制风机频率节省送风能源 § 优化室内气流组织 二、东北电网VAV系统实施要点 东北电网VAV空调送风系统为低温送风,空调主机供、回水温度为
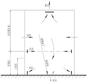
高大空间如东北电网首层大堂区域,当建筑物室内高度H≥ 原设计分层空调时,以送风口中心作为分层面,将整个高大空间的垂直方向分为二个区域,分层面以下的空间为空调区,分层面以上的空间为非空调区。而工作区则为高大建筑物所要求必须保证温湿度参数的区域,作为舒适性空调,一般可取2~3 东北电网大楼,大堂宽度为 难点:由于东北电网大堂进深较深,采用单风道变风量末端则要求空气处理机组具有一定高的静压才能满足大堂的风口射程要求,增大空气处理机组的风机能耗。尤其在小风量时,单风道变风量末端风量减少,射程降低,冷风从风口吹出后,无足够静压,气流下坠,容易出现空调区域温度不均情况,如下图1。
图1 原设计方案 采用单风道变风量末端方案
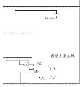
图2 优化设计建议采用串联式风机动力型变风量末端方案 解决方案:变风量末端设备的优化 采用串联式风机动力型变风量末端,无论在最大设计风量下还是最小设计风量下,机组均以定送风量形式运行,满足了风口风量要求,同时保证风口射程,杜绝因静压不足而出现的气流下坠情况。但必须注意,串联式风机动力型变风量末端须另外接回风口,以保证机组本身的回风和正常运行。如上图2所示,增加吊顶下回风口用于二次回风,有利于改善大堂的气流组织,使整个区获得均匀的温度场。 综上所述,首层大堂高大空间内,采用串联式风机动力型变风量末端与条缝型送风口(射程远)侧送结合使用的方案,使每个送风口风量平均,并对其气流组织进行校核,从而在高大空间内实现了温度场的均匀分布。 2.2 VAV系统的回风平衡问题及解决措施 送风量根据室内负荷变化需求而不断改变,此时如果回风量保持不变,则房间中可能会出现过大的负压,随之而来的可能是室外空气的侵入,使室内负荷增大,同时回风机也浪费能量,显然不利于空调系统的节能运行,为此必须进行风量平衡控制,也就是对送、回风机进行连锁控制。根据不同总风量需求,则相应的风量平衡控制方式也不同。
图3:建筑物空气量平衡示意图 LS 一一 空调系统送风量;LR ―一 空调系统回风量; LF 一一 空调系统新风量; LE ― 空调系统排风量; LME ― 空调区域里的机械排风量。 如图3所示,只要各空调系统补充的新风量总和等于(或略大于)各空调系统的排风量总和,加上各机械排风量总和,该空调区域空气压力将维持与大气压力相等或略高于大气压。 解决方式:回风机跟踪控制法 ( 1 )如果AHU被要求运行,则AHU控制器将会把送风机的运行信号给回风机发出; ( 2 )回风机控制逻辑与送风机控制逻辑相同,也会产生同类的警报; ( 3 )AHU控制器将按照送风机PID输出的变频器频率的80%调节回风机的变频器,但如果回风机正在运行,则AHU控制器给它的最小变频信号为20%; ( 4 )如果回风机没有运行信号,则控制器给回风机变频器的输出为0; ( 5 )用户可以锁定回风机的变频信号。 当送风量的设定值及实测值都能通过中央控制器计算得到,则保持正压所需的回风量也就能确定,因此可以由DDC 中央控制器直接调整回风机频率即可达到正压要求。 2.3 VAV系统的噪声控制 噪声是室内环境品质的影响因素之一。空调系统若设计不当,室内噪声容易超标。空调系统(尤其是全空气空调系统) 的噪声控制常常是令设计、调试人员感到棘手的问题。 1、本案AHU 机房的送回风总管都有消音措施,采用了消声静压箱,但是可能由于安装位置的窘迫而且还要考虑防火阀的安装位置,消声器设置在AHU机组内,见下图4示:
图4:AHU机房布置图 2、因消声静压箱的消声量有限,实施后在送风管出机房的管段上加设一段消声器,放置在穿机房墙的中心位置。 另外,风机的工作点对风机的噪声影响很大,通常在最高效率点附近时,节能性最好,噪声也最低。 因此在空气处理机风机选型时,其最佳效率点应选择在设计风量、风压工作点的70%~80%之间,因为它在该区间运行的时间最长。 三、VAV空调末端的选型及标定、整定 变风量末端箱体(VAV-BOX)在设计选型时应参考设计院的暖通参数设计,主要包含:风管入口口径、最大风量、最小风量以及末端箱体的组织形式。通过设备厂家自身的选型手册,选择最合适的末端箱体。选型中,由于各个厂家之间设备的差异,风管入口口径或许会存在不同,故最大风量、最小风量为必须满足的参数,并留有一定的富裕量。 变风量末端箱体调试一般分两大步骤进行:工厂标定以及现场整定,两者缺一不可。 工厂标定主要由末端箱体厂家负责使用专业标定设备,标定每一台变风量末端箱体的相关风量参数,校正变风量末端箱体自带的风量监测仪与标准风量之间的差异,并将相关参数(最大风量、最小风量、入口口径等等)写入控制器内,同时至少标定特性曲线内三个典型风量值。 现场整定主要由末端控制器厂家负责完成,工厂完成标定的每台设备,其在操作台标定的参数为理想化送风状态下的参数,现场实际状态与理想状态存在一定的偏差,需使用手持式风速检测仪测量变风量末端箱体的最大,最小风量,同时在人机界面读取控制器测量的风量值,校正两者之间的偏差,现场整定工作通常较工厂标定更为重要,变风量空调系统能否实现节能、高效的运行与现场整定工作的完善与否密切相关。 四、VAV空调系统的控制 VAV系统风量的控制策略是VAV系统成败的关键,传统常用的VAV系统控制策略有三种:定静压、总风量、变静压,但应用得较多的是定静压,总风量和变静压应用得相对较少,因为它们各自都存在自己本身无法解决的问题,总风量法必须基于准确无误的风量曲线,但得出精确的风量曲线是非常困难的;变静压法可以使系统运行在最节能的状态下,但由于使用了阀位反馈控制方式,风阀的动作和反应是非常慢的,因此,系统在负荷变化较大时,会出现较大的波动,系统需要比较长的时间才能达到稳定。所以,虽然定静压众所周知并不是最节能的控制方式,但以往人们出于对VAV系统的不了解,出于对总风量和变静压控制效果和稳定性的担忧,大多数项目最终都退而求其次,选择简单的定静压控制方式。 但随着我们对VAV系统认识的深入,对楼宇节能要求的不断提高,我们现在迫切需要一种既最节能,又能使VAV系统迅速达到平衡,而且系统稳定性必须有保障的控制方式,延华公司依托多家空调厂商的VAV工程经验,通过在多个项目工程实例的成功应用,总结得出有我们自己特色的VAV控制方式:总风量+阀位重置+定静压保护,该方式可使在同一个VAV系统中,发挥三种控制方式的优点,同时又相互弥补了各自的缺点,最终可以得到快速、节能、稳定的VAV系统。 东北电网变风量系统复合了三种控制方式。 即采用“总风量+变静压(阀位调整)+定静压方式” 原理图如下:
第一步:利用总风量法前馈控制的优点, 使系统迅速达到平衡(从原点点到达A点). 通过累加VAV总的需求风量, 根据风量对应频率的风机曲线迅速计算出风机此时需要运行的频率, 并控制风机迅速达到, 风机调节速度比VAV风阀调节要快得多,避免了VAV风阀调节引起的系统波动。 第二步:利用变静压法精确控制的优点, 微调风机频率,进一步使系统运行在最节能的状态. (从A点到达B点) 由于总风量法的风量曲线难免存在误差, 我们很难直接把系统控制到最节能的状态, 此时我们通过变静压法(即阀位控制), 检测VAV最大的风阀开度,并微调风机频率,使系统中最大的VAV开度达到80%~90%之间, 此时,表明系统既运行在最节能的状态,又可以满足所有VAV的风量需求. 第三步:利用定静压法保证系统运行的安全性(从B点到达C点). 由于总风量法和变静压法引入了VAV需求风量和VAV风阀开度等变量,控制环节比定静压法更为复杂,很容易在系统通信或某些VAV发生故障的时候, 系统发生失控, 此时,我们引入定静压法,限制系统的最大静压不会超过设定的静压值,从而防止系统出现失控。 当系统出现静压异常,压力过大时,系统会即时发出报警,提醒系统管理人员进行及时维护。
五、结束语 节能和环保是实现可持续发展的关键。东北电网的空调系统作为一项用能大户,其能耗已占大厦总能耗的70%左右,节能意义十分巨大。而从可持续发展理论出发,空调系统如何适应在低负荷下高效节能运行及在系统设计中对设备进行节能选配及控制就成为空调节能的关键,东北电网变风量VAV空调控制系统有效的解决了传统定风量方式高能耗,低效率的问题,这对于节约能源、降低运行费用、促进国民经济发展具有十分重要的意义。 东北电网(VAV)空调控制系统设计合理,安装调试符合规范,一次调试成功,工程造价低。通过一年冷、暖季的实际运行,达到了设计要求,系统运行稳定,同时结合冰蓄冷,整体节能优势明显,积极响应了国家节能减排的号召,实现了系统的设计目标。
作者:吴强 张金宏 高峥 杨喜海 张泰林
|
如需转载请签注以下信息:
文章标题:东北电网变风量VAV空调控制系统工程案例解析
文章链接:http://www.x87jg.cn/index.php/Home/article/detailPage/parentID/1480/cat_id/1484/artID/1094
中国|智慧城市|智能建筑|建筑节能|系统集成|解决方案-延华智能
| [上一条]浅析:关于中国智能建筑的节能减排问题 [下一条]高新技术在智能化小区的推广应用 |